Norma Uranga
Norma Uranga
  • Cell: +525516917177
  • Office: 5555555555
  • Email: contacto.newcollection@gmail.com

En Renta Nave Industrial de 8,226 m² en Nueva Industrial Vallejo

Nueva Industrial Vallejo, Gustavo A. Madero

US$ 102,825 For Rent

  • 8,226 m² total space
  • 8,226 m² Lot Size
  • US$ 10,282 Expenses
  • EB-OF8489 ID
Description

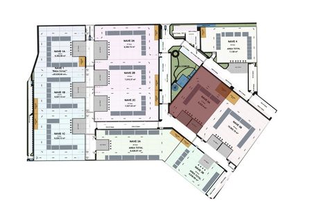
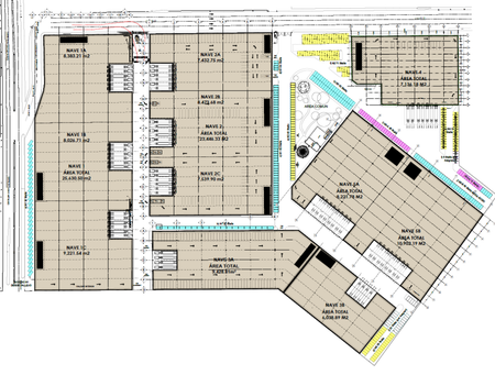
CARACTERISTICAS DEL INMUEBLE:

Nave a rentar:
•Nave 5A: 8,226 m²

Renta: $12.50 USD / m²
Mantenimiento: $1.25 USD / m²

•Altura : 6 m
•Puertas de carga: 8
•Estacionamiento: Vehículos: 28 / Vans: 41
•Piso: Acabado endurecedor Ashford, capacidad mínima 3tons/m2

•Electricidad: Transformador independiente por edificio de 225 KVA's, infraestructura eléctrica y alumbrado de emergencia.

•Protección contra incendios Lucha contra incendios centralizada. Sistema: red (hidrantes y mangueras), norma aprobada por NFPA.

•Servicio de Agua: Sistema Hidráulico: Dos cisternas

•Seguridad: Parque seguro con acceso restringido, cerco perimetral y caseta de vigilancia.

•Infraestructura: Instalaciones sanitarias, eléctricas e hidráulicas para cada inquilino.

Nota: Los precios publicados, disponibilidad del inmueble u otras condiciones podrán ser sujetos a cambio sin previo aviso. Toda la información y medidas provistas son aproximadas y se proporcionan con fines informativos, por lo que deberán ser confirmados en la documentación pertinente. La información corresponde a los últimos datos recabados y deberá confirmarse. Fotografías no vinculantes ni contractuales.

ODEB-QM3389

Amenities
  • Platform
  • Street parking
  • Loading dock
  • Patio
  • Alarm
  • Closed-Circuit Security System
  • Backup generator
  • Ramps
  • 24 Hour Security
  • Storge Unit
  • Door man
Norma Uranga
Norma Uranga
  • Cell: +525516917177
  • Office: 5555555555
  • Email: contacto.newcollection@gmail.com
Norma Uranga
Norma Uranga
  • Cell: +525516917177
  • Office: 5555555555
  • Email: contacto.newcollection@gmail.com